Katern

Buurtbrabbel in Galecop gaat van start!

Buurtbrabbel in Galecop gaat van start!
Op verzoek van ouders uit Galecop zal er vanaf 26 januari elke donderdagochtend in Galecop een Buurtbrabbel starten. Tijdens de Buurtbrabbel kunnen ouders elkaar ontmoeten, ervaringen uitwisselen over het ouderschap en de kinderen (0-4 jaar) kunnen samen spelen of een activiteit doen. Elke donderdagochtend van 9.30-11.00 uur zijn ouders van harte welkom met hun baby, dreumes of peuter op Buurtplein... Lees meer

Gladheidsbestrijding, Galecop koudste plek van Nieuwegein

Gladheidsbestrijding, Galecop koudste plek van Nieuwegein
Bij sneeuw en ijzel houden wij de wegen en straten in Nieuwegein begaanbaar. Medewerkers van de gemeente zijn al sinds donderdagavond 19.30 uur in de weer om wegen en fietspaden sneeuwvrij te maken. Naar verwachting houden de winterse buien vandaag aan. U bent zelf ook verantwoordelijkheid voor gladheidsbestrijding. Bijvoorbeeld voor het sneeuw- of ijsvrij maken van uw stoep. Op diverse... Lees meer

Wijkbijeenkomst Galecop Geweldig

Wijkbijeenkomst Galecop Geweldig
De afgelopen twee jaar bedachten bewoners en professionals in Galecop onder de vlag ‘Galecop Geweldig’ ideeën om het leven in deze wijk nog aangenamer te maken. Een aantal ideeën zijn inmiddels uitgevoerd, zoals de wijkkrant, bloeiende bermen, gezamenlijk zwerfafval ruimen en gezellige activiteiten op vrijdagavond. Ook liggen er nog allemaal leuke ideeën te wachten om verder uitgewerkt te worden. Voor... Lees meer

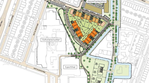
Informatieavond bouwplan locatie Altrecht Galecop

Informatieavond bouwplan locatie Altrecht Galecop
Donderdag 19 januari 2023 van 18.30 uur tot 20.00 uur is er een inloop informatieavond over het bouwplan ‘Locatie Altrecht’ in de wijk Galecop. Tijdens deze avond, die gehouden zal worden in de Sporthal Galecop aan de Aert de Gelderhage 7, kunnen direct betrokkenen en omwonenden vragen stellen over de plannen. Ook kan een reactie worden gegeven naar aanleiding van... Lees meer

Uitreiking eerste editie wijkkrant De Galecopper aan wijkwethouder

Uitreiking eerste editie wijkkrant De Galecopper aan wijkwethouder
Galecop Geweldig is een project waarin bewoners en wijkprofessionals samen kijken wat er nodig is om in de wijk prettig en gezond te leven. Tijdens een van de bijeenkomsten bleek een grote behoefte aan een papieren wijkkrant, naast de digitale nieuwsbrief en de wijkwebsite. Diverse initiatiefnemers gingen hiermee aan de slag, met als resultaat: De Galecopper. Wijkwethouder John van Engelen... Lees meer

Geslaagde kerstshow KRC Rolling

Geslaagde kerstshow KRC Rolling
De afgelopen twee jaar hebben diverse verenigingen te kampen gehad met de Coronamaatregelen. Veel kon niet doorgaan maar, nu het Coronavirus onder controle is, kon afgelopen weekend weer genoten worden van de traditionele kerstshow van rolschaatsvereniging KRC Rolling. Een kleine 50 vrijwilligers hebben meegeholpen aan dit spektakel en ruim 1100 bezoekers genoten van het optreden. In een totaal uitverkocht Sporthal... Lees meer

Repair Café Galecop met thema: ‘Feestdagen’

Repair Café Galecop met thema: ‘Feestdagen’
Zaterdag 17 december wordt weer het maandelijkse Repair Café in Nieuwegein gehouden. Het thema is deze keer Feestdagen. Inwoners van Nieuwegein kunnen dan van 11.00 uur tot 14.00 uur in buurtplein Galecop aan het Thorbeckepark 183 hun kapotte spulletjes laten repareren. Deze keer wordt extra aandacht besteed aan kerstverlichting, maar natuurlijk ook alle andere (elektronische) spullen zoals speelgoed en poppen.... Lees meer

Eerste zwerfvuilopruimactie Galecop een groot succes

Eerste zwerfvuilopruimactie Galecop een groot succes
Zaterdag 26 november jl. was er een opruimactie om de wijk Galecop zwerfafvalvrij te maken. Deze opruimactie was een initiatief van wijkbewoonster Debbie van Rooijen en stichting No Plastic Runner uit IJsselstein. Om zoveel mogelijk mensen mee te laten doen hadden ze posters laten drukken en opgehangen in de wijk, berichten op social media en mond op mond reclame gemaakt... Lees meer

Repair Café Galecop in teken van (elektronisch) speelgoed en poppen

Repair Café Galecop in teken van (elektronisch) speelgoed en poppen
Zaterdag 19 november wordt weer het maandelijkse Repair Café in Nieuwegein gehouden. Inwoners van Nieuwegein kunnen dan van 11.00 uur tot 14.00 uur in buurtplein Galecop aan het Thorbeckepark 183 hun kapotte spulletjes laten repareren. Deze keer wordt extra aandacht besteed aan speelgoed zoals (elektronisch) speelgoed en poppen. Het Repair Café is een initiatief van vrijwilligers die repareren promoten als... Lees meer

Ook weer Sint Maarten in Galecop met Galecop Sociaal

Ook weer Sint Maarten in Galecop met Galecop Sociaal
Galecop Sociaal gaat haar activiteiten weer oppakken. Na lange tijd, vanwege de corona, stil te hebben gelegen worden er weer diverse activiteiten georganiseerd waaronder een 11 november een Sint Maartenoptocht en op 18 december aanstaande Winterwonderland. Galecop Sociaal is een wijkorganisatie gerund door vrijwilligers uit de buurt die leuke activiteiten willen organiseren voor de bewoners in de wijk. Nathalie Nagtegaal... Lees meer
Onze adverteerders maken pen.nl mogelijk